В Бресте с аукциона продали земельный участок в районе улице Дзержинского 31, это рядом с Советской. Торги стартовали с суммы 4 864,03 рубля, а продали землю за 3,6 млн рублей. Это примерно в 740 раз больше начальной цены. Подробности аукциона рассказал портал о недвижимости wikidom.

Читайте также: В Бресте на углу Советской и Дзержинского снесут здания. На их месте появятся офисы, магазины и рестораны
«Самое интересное — это стоимость торгов, тут были удивлены все: от участников до организаторов. Со стартовой цены 4 864,03 рубля стоимость выросла до 3 600 000 рублей. Пропорционально размеру участка это явный лидер по цене для брестского рынка. Победителем торгов стала местная компания, которая пока пожелала остаться неназванной», — пишет wikidom.
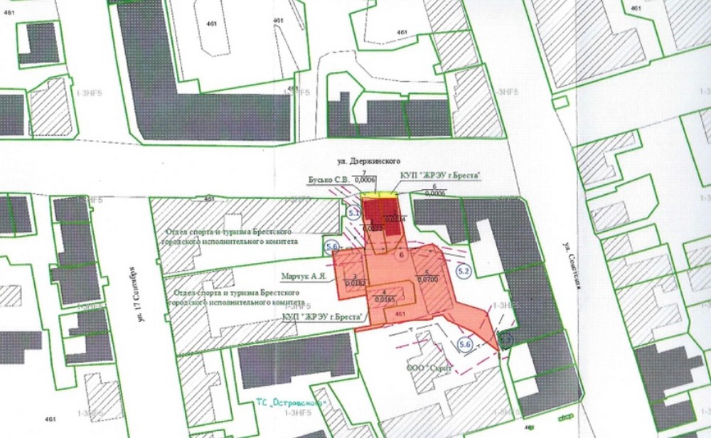
Пока на территории земельного участка расположены полузаброшенные здания и сооружения, подлежащие сносу. Они находятся на балансе ЖРЭУ, сумма компенсаций за них обозначена в 708 077 рублей, то есть это то, что ляжет в будущем на застройщика.
«Как видим, брестские застройщики все активнее стали приобретать участки именно в центральной части города, т.е. процесс реновации постепенно набирает обороты в Бресте, и все чаще на месте старых строений появляются современные жилые комплексы», — отмечает wikidom.

По мнению экспертов портала, покупатели жилья в Бресте все чаще показывают, что готовы переплачивать за квадратные метры, находящиеся именно в центре города. Чего только стоят сделки на улицах Гоголя, Папанина, Комсомольской и 17 сентября.
«Так или иначе, в городе все отчетливее начинает формироваться пласт покупателей, которые рассматривают себе покупку квартиры именно в центральной части города и готовы часто платить за них почти «минские цены». Ну и если есть спрос, то всегда будут и те, кто готов будет на этом зарабатывать. А чтобы заработать, за это право нужно побороться, и в том числе финансово…» — считает эксперт рынка недвижимости Николай Тукин.

Читайте также: «Для приближения к оригиналу здание нужно разобрать». Исторический центр Бреста продолжают уничтожать — примеры
Наш канал в Telegram. Присоединяйтесь!
Есть о чем рассказать? Пишите в наш Telegram-бот. Это анонимно и быстро


Сообщить об опечатке
Текст, который будет отправлен нашим редакторам: